SG-E88

SG-E88

228.6m²​​ ​​ íbúðarhús – 5 herb.

​SG-E72

​SG-E72

238.1​m²​​ ​​ íbúðarhús – 5 herb.

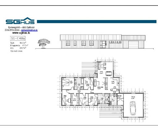
​SG-E48b

​SG-E48b

231.7m²​​ ​​ íbúðarhús – 5 herb.